Вся серия Zentralmodul Antares
Все характеристики
Комплект унитаз с инсталляцией Roxen Antares Tornado Asten Readle подвесной, с крышкой, с кнопкой, матовый хром. Все характеристики |
|||||||||||||||||||||||||||||||||||||||||||||||||||||
|
Описание:
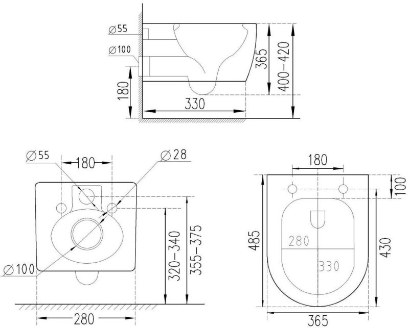
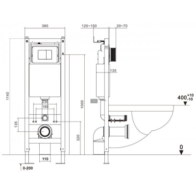
Комплект Asten Readle Zentralmodul AR0601-205M - готовое решение.Унитаз. Подвесной унитаз Roxen Antares Tornado 530205-01 из санитарного фарфора. Гладкая поверхность без пор препятствует перемещению бактерий. Антибактериальное покрытие обеспечивает легкий уход, белизну и первоначальный внешний вид на долгие годы. Чаша без внутреннего ободка Rimless cо смывом Tornado по всему периметру без разбрызгивания воды. Унитаз удаляет отходы с первого раза сильным круговым потоком, при этом экономно расходует воду. Сиденье. Тонкое легкосъемное сиденье с крышкой Soft Close из жесткого материала Duroplast повышенной прочности. Плавное, медленное, мягкое опускание микролифт не позволит крышке ударяться о борт унитаза. Хромированные металлические петли. Инсталляция. Усиленная монтажная рама Asten Readle Zentralmodul AR0501 выдерживает до 320 кг нагрузки. Оптимальная выверенная монтажная глубина 12-15 см. Глубина и высота инсталляции регулируются. Инсталляция монтируется на пол, на капитальную и на некапитальную стену. Специально разработанная система металлических креплений к стене дает возможность установки инсталляции в угол. Цельнолитой бачок скрытого монтажа изготовлен из долговечного полимерного материала HDPE и защищен шумоизоляционным пенополистиролом (EPS), который снижает уровень шума и предотвращает образование конденсата и плесени. Смыв настроен на использование инсталляции с подвесными унитазами и предусматривает два режима 3/6 л. Латунный запорный вентиль. Рама стальная с порошковым покрытием. Кнопка. Asten Readle AR0601-M цвета хром с матовой поверхностью из ударопрочного, экологически чистого ABS пластика марки HDPE. Легкоочищаемая устойчивая к истиранию поверхность. Установка без использования инструментов. Бесшумная двухрежимная система смыва. Быстросъемная система Easy Fix для быстрого доступа к коммуникациям. Производство. Молодая компания Asten Readle основана в Германии. Благодаря высокому качеству, стильному дизайну и доступной стоимостью товаров, ее продукция завоевала доверие покупателей. Качество. Сантехника Asten Readle изготовлена из проверенных и экологичных материалов. Каждое изделие проходит обязательную проверку на соответствие международным стандартам. Функциональность, удобство в использовании, современный дизайн делают изделия Asten Readle привлекательным выбором на любой вкус. Гарантия. Длительная гарантия - 20 лет. Изображение на мониторе может отличаться от оригинала. Комплектность:
В комплекте: подвесной унитаз Roxen Antares Tornado 530205-01, инсталляция Zentralmodul AR0501, кнопка AR0601-M, комплект креплений к стене, звукоизолирующая панель. |
|
||||||||||||||||||||||||||||||||||||||||||||||||||||
Отзывы

