Все характеристики
Каркас для ванны Riho MVL 150-200x110 ram-MVL-110 универсальный, прямоуг., черный. Все характеристики |
|||||||||||||||
|
Описание:
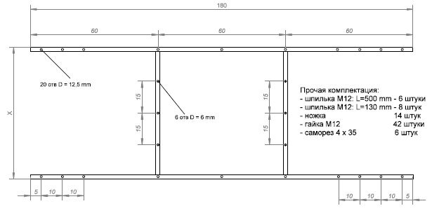
Подгонка под длину ванны осуществляется путем подрезки сварной рамки.Изображение и цвет на мониторе могут отличаться от оригинала. Комплектность:
Только для продажи вместе с ванной!Подходит для прямоугольных ванн длиной от 150 до 200 см и шириной 110 см. |
|
||||||||||||||
Отзывы

